R. H. Major Opticians,68 Main Street,Carrick-On-Suir,Co. Tipperary, Co. Tipperary
2088 sq ft
Property Description
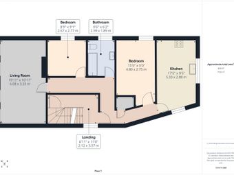
Prime commercial premises occupying a prominent position in the centre of Carrick On Suir. Established opticians on the ground floor with two apartments overhead with separate access. Air con and electric heating. C3 BER. The building extends to c. 194 sq. meters overall (2,090 sq. ft.) and comprises: Ground floor: Reception / shop display area, consulting room, store / canteen with door to rear. Staff WC. First Floor: Two-bedroom apartment with living room, kitchen / diner and bathroom. Second Floor: One bedroom apartment with kitchen / living / dining room, access to large roof terrace. Double bedroom, ensuite shower room. The property also benefits from a large enclosed rear yard providing secure off street parking with electric security gates. TENANT NOT AFFECTED.
We understand that selling or letting your property is a hugely important decision. For comprehensive advice from the best local experts contact Palmer Auctioneers.
We use cookies to ensure that we give you the best experience on our website. If you continue to use this site we will assume that you are happy with it.
You can revoke your consent any time using the Revoke consent button.